外と内を心地よくつなぐ、アウトドアストッカーのある家

三角屋根に、白とダークブラウンのツートーン外観が目を引く2階建ての住まい。
芝生が広がるグリーンの庭に、色とりどりの玄関タイル、ウッドバルコニーがアクセントになり、ナチュラルさと遊び心が共存する外観に仕上がりました。
間取り図


| 面積 | |
| 敷地面積 | 391.85㎡(118.53坪) |
| 1F床面積 | 67.08㎡(20.29坪) |
| 2F床面積 | 67.08㎡(20.29坪) |
| 延床面積 | 131.16㎡(40.58坪) |
| 家族構成 | 5人家族 |
| ブランド | ise |

玄関横の黒い扉を開けると、土間とつながるアウトドアストッカーが広がります。
この空間は、趣味を思いきり楽しむためのこだわりの場所。
そのまま庭へ出られるため、BBQやアウトドア遊びの拠点としても活躍します。

読書やコーヒータイムを楽しむ、まるで秘密基地のような過ごし方も。
さらに、シンクも備えているため、食材の下ごしらえや後片付けもその場で完結できます。

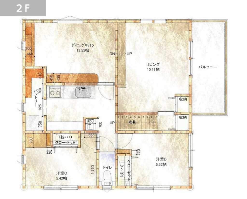
2階へ上がると、ステップフロアでゆるやかにゾーニングされたLDKが広がります。
親戚や友人が集まった際には、ステップ部分が腰掛けスペースとしても活躍。
キッチンには、無垢の木が印象的な「ウッドワン su:iji(スイージー)」を取り入れ、使い勝手はもちろん、木ならではの経年変化も楽しめます。


2階LDKは、外からの視線を気にせずカーテンを開けたまま過ごせるため、日中の明るい光と開放感が家全体を包みます。
ステップフロアによる高低差が空間にほどよい変化を生み出し、料理をしながらでも家族の様子を見渡せる、安心感のある間取りとなりました。


玄関近くには造作洗面室を設け、帰宅後すぐに手洗いができる衛生的な動線を確保。
木の温もりとタイルの組み合わせが、どこかレトロで落ち着きのある雰囲気を演出しています。

ランドリールームとウォークインクローゼットを隣接させることで、洗濯から収納までをスムーズにつなぐ家事動線を実現。
さらに、アイロンがけ専用の棚も設置し、日々の家事負担を軽減。
効率的な動線計画が、家族と過ごす時間にゆとりをもたらします。
