家族時間がつながるウッドデッキのある家

ナチュラルな木の風合いが心地よく広がる住まい。
動線や空間のつながりを丁寧に考え、自然と家族が集まる心落ち着く空間が完成しました。
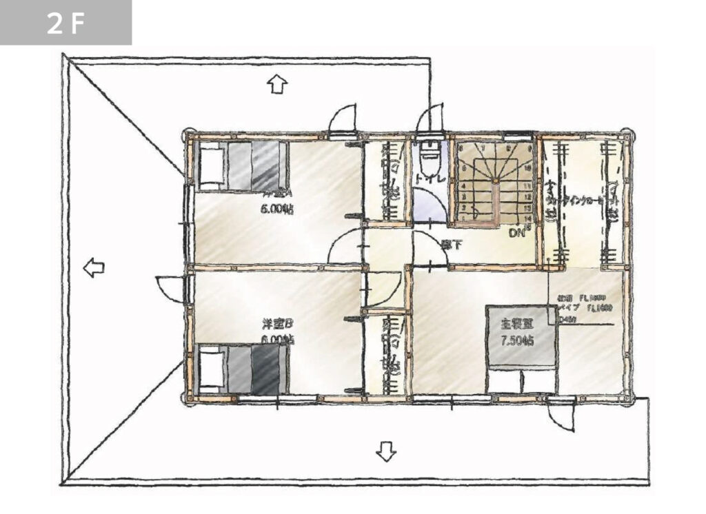
間取り図


| 面積 | |
| 敷地面積 | 207.03㎡(62.63坪) |
| 1F床面積 | 59.62㎡(18.04坪) |
| 2F床面積 | 49.68㎡(15.02坪) |
| 延床面積 | 109.31㎡(33.07坪) |
| 家族構成 | 4人家族 |
| ブランド | ise |
お客様のこだわりポイント
①明るく開放的なLDKと、つながるウッドデッキ

LDKには、大きな窓と高窓を設けて日差しがたっぷり差し込み、明るく開放的な空間に。
ベージュのアクセントクロスが、メープル色の床材と調和し、柔らかな雰囲気をつくり出しています。

リビングのすぐ外には、長さ約10mのウッドデッキが広がります。
室内から一歩外へ出るだけで、日常に特別感をもたらす場所に。
朝はコーヒーを片手にゆったりと、夕方には外の空気を感じながらくつろぐ時間を過ごすことができます。
②木目で統一された、造作カウンター付きのキッチン

キッチンには、木目調のデザインが特徴的なタカラスタンダードの「オフェリア」を取り入れ、LDKと雰囲気をそろえました。

背面には白のタイル柄クロスをアクセントとして用い、木の質感を引き立てつつ、空間にメリハリを加えました。

造作カウンターは、高さや幅、収納棚の数まで細かく設計。
使いやすさとデザイン性を兼ね備えた、奥さま理想のキッチンが形になりました。
③外干しも中干しも快適なランドリールーム

キッチン裏の水まわり空間には、ランドリールームを中心に家事がスムーズに進む動線を設けました。
造作棚を活用して、洗濯物を畳んだりアイロンをかけたりできる作業スペースも確保。

畳む必要のない衣類は、そのままクローゼットにかけるだけで収納完了。
ランドリールームから直接ウッドデッキに出られるので、天気に合わせて外干しと室内での中干しが選べ、洗濯の手間がぐっと減りました。
完成後の仕上がり・住み心地


●ウッドデッキ
LDKとランドリールームの外側をゆるやかにつなぐように設けたウッドデッキは、アメリカンテイストのカバードポーチ風に仕上げました。
お子さんが外で遊ぶ様子も室内からしっかり見える安心設計です。

●洗面室
洗面室には木目調で統一した造作洗面台を設け、くすみカラーのタイルをあしらいました。
見た目と使いやすさの両方を叶える空間になっています。

●浴室
浴室には、タカラスタンダードの「テラゾーホワイト」を取り入れました。
統一感のあるトーンでまとめ、すっきりと清潔感あふれる空間に仕上がりました。