fbpx

【モデルハウス グランドオープン】家族の笑顔が増える、家事ラク動線を追求した平屋

ise
日程 5月2日(土)~31日(日)
開催時間 9:00・10:00・11:00・12:00・13:00・14:00・15:00・16:00・17:00
開催場所 松阪市郷津町
備考 18時以降の見学も可能ですので、お気軽にお問い合わせください。
お客様への
お約束について
中美建設では、お客様からのご希望がない限り、こちらからのお電話や勧誘等の営業行為は、一切行っておりません。どうぞ安心してご参加ください。

お電話でのお問い合わせ

0120-14-3652

松阪市郷津町にて平屋モデルハウスがオープン

子育てや家事に追われる毎日の中でも、家族の時間を大切にしたい。

そんな想いに寄り添い、家族のつながりと暮らしやすさを考えた平屋モデルハウスが完成しました。

家族の笑顔が自然と増えていく暮らしを、ぜひご体感ください。

お家の見どころポイント

子どもがのびのび遊べる、外とつながる開放的なLDK

LDKの窓を開けると、ウッドデッキとひとつにつながり、家の中でも外でも、のびのび過ごせる空間に。

キッチンで料理をしながら、リビングやウッドデッキで遊ぶ子どもたちの様子が自然と目に入る距離感。

親も子どもも安心して過ごせる、心地よい家族時間が広がるLDKです。

料理も洗濯もまとめて進む家事ラク動線

キッチンからパントリー、ランドリールーム、お風呂へとつながる間取り。

料理の合間に洗濯をしたり、お風呂の準備をしたり。

それぞれの家事を行き来する負担が減り、忙しい毎日の中でも、ゆとりが生まれます。

「洗う→干す→しまう」が最短距離で完結する、スムーズな洗濯動線

ランドリールームで洗濯をし、乾いたらすぐ隣のファミリークローゼットへ収納。

移動が少ないため、洗濯から片付けまでがスムーズに進みます。

毎日の洗濯が気持ちよく進む、家事の負担をやさしく軽くしてくれる間取りです。

家族の会話が自然に生まれる帰宅動線

帰宅後は、LDKと洗面スペースを通って子ども部屋へとつながる間取り。

自然と家族が顔を合わせ、「おかえり」「今日どうだった?」そんな会話が自然と増えていきます。

手洗いの習慣も自然と身につき、子育て世代にうれしい動線です。

一年中、心地よさと安心が続く住まい

全館空調『MAHBEX涼暖』を取り入れ、夏も冬も、家のどこにいても心地よい温度に。

朝起きた時も、お風呂上がりも、温度差に悩まされることなく過ごせます。

さらに太陽光と蓄電池で、電気代を抑えながら、安心して暮らせる住まいです。

\ お気軽にご予約ください /

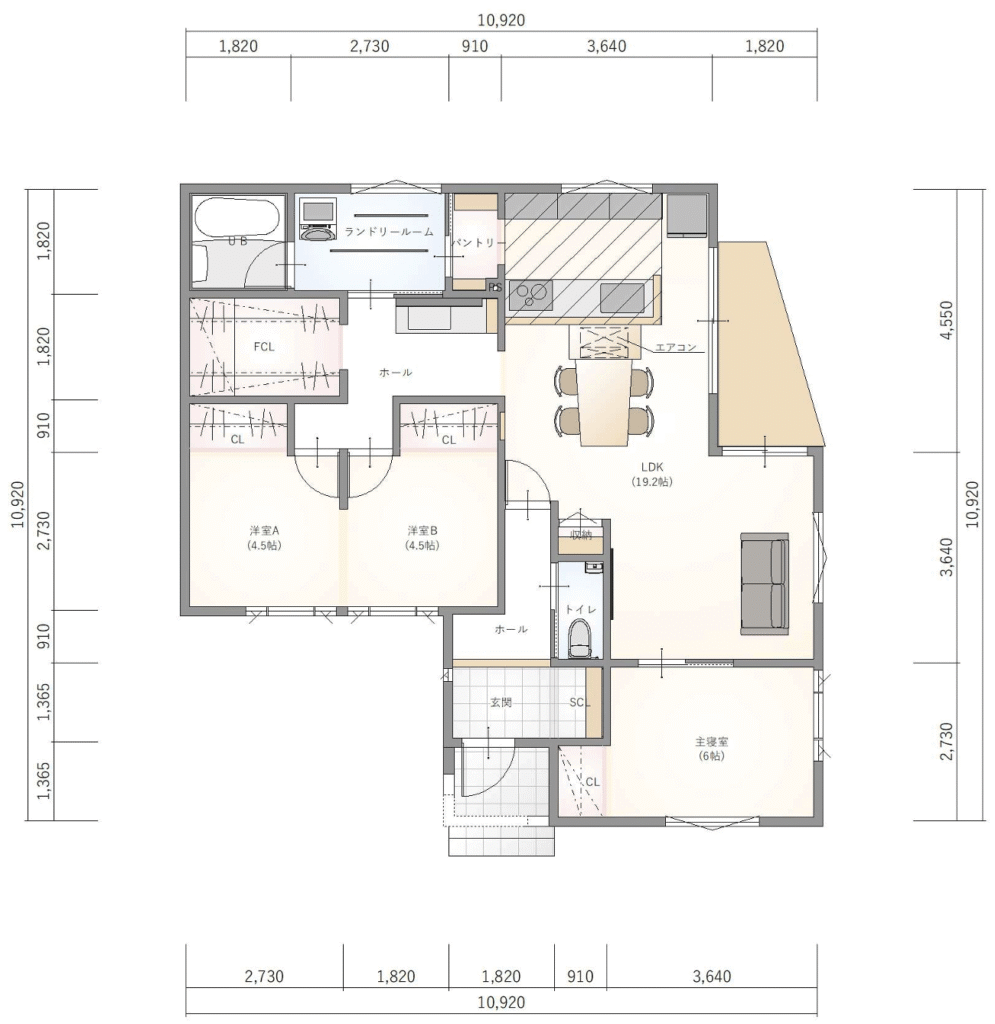
建築面積94.40㎡(28.55坪)
延床面積91.91㎡(27.80坪)
間取り3LDK
住宅性能耐震等級3相当、G2仕様

会場MAP

会場 / 松阪市郷津町

場所の詳細やご不明な点がございましたら、お気軽にお問合せください。

\ お気軽にご予約ください /

※5/2(土)~6日(水・祝)は、キッズスタッフの対応は行っておりません。ご了承ください。

\ お気軽にご予約ください /

快適さと安心もきちんと備えた、中美建設の家

■ G2(HEAT20)グレード相当の断熱性能

外気温に左右されにくく、少ないエネルギーで夏も冬も快適に過ごせる高断熱仕様。

冷暖房効率が高く、省エネにも健康にもやさしい住まいです。

■ MIRAIE(制震ユニット搭載)

繰り返す地震の揺れを吸収・低減する制震ユニット「MIRAIE」を標準搭載。

万が一のときも、家族を守りながら安心して住み続けられる強さを備えています。

中美建設が選ばれる理由

家創りの本質を決して妥協することなく、多くのお客様に喜ばれる家創りと暮らしの彩りを創造し続けています。

日程 5月2日(土)~31日(日)
開催時間 9:00・10:00・11:00・12:00・13:00・14:00・15:00・16:00・17:00
開催場所 松阪市郷津町
備考 18時以降の見学も可能ですので、お気軽にお問い合わせください。

お電話でのお問い合わせ

0120-14-3652
0120-14-3652 受付時間 9:00〜20:00(水曜定休)
資料請求 無料相談会

資料請求

まずはお気軽にご相談ください。

資料請求はこちら

無料相談会

まずはお気軽にご相談ください。

無料相談会についてはこちら