「子育てがもっと楽しくなる、家事ラク動線のおウチ」見学会
| 日程 | 11月1日(土)~30日(日) |
|---|---|
| 開催時間 | 10:00・11:00・12:00・13:00・14:00・15:00・16:00・17:00 |
| 開催場所 | 松阪市新町 |
| 備考 | 18時以降の見学も可能ですので、お気軽にお問い合わせください。 |
| お客様への お約束について |
中美建設では、お客様からのご希望がない限り、こちらからのお電話や勧誘等の営業行為は、一切行っておりません。どうぞ安心してご参加ください。 |
お気軽にご予約ください
ご予約フォームはこちらお電話でのお問い合わせ
0120-14-3652
今回のおウチは…
子どもと過ごす毎日は、嬉しいことも大変なこともたくさん。
そんな毎日を、少しでも“楽しく、心地よく”過ごせるように。
家事も子育てもスムーズに進むよう工夫されたお家ができました。
いつもの家事も、子どもと過ごす時間も、きっと今より快適で楽しくなるはず。
見学会で、その“ちょうどいい暮らしやすさ”を体感してください。

\ お気軽にご予約ください /
お家の見どころポイント
POINT1
家族の会話が広がる、カウンターキッチンのあるLDK

「リビングで遊ぶ子どもの姿を見ながら、安心して家事がしたい。」そんな想いに応える、カウンターキッチンのあるLDK。
料理をしながらでも、リビングの子どもの様子を見守れる安心感。

カウンター越しに「ママ、見て!」と声が届き、自然と会話が弾みます。

家族が集まりたくなる、つながりあるLDKです。
POINT2
「洗う→干す→しまう」が5歩で完結する家事ラク動線

「洗濯・収納・片づけ…気づけば家の中をぐるぐる。」そんな忙しい毎日を支える、洗濯が5歩で完結する家事ラク動線。
洗面室のすぐ横にファミリークローゼットを設け、重たい洗濯かごを運ぶ手間をなくしました。

また、リビング→洗面室→ファミリークローゼット→リビングがぐるっと回れる回遊動線。
子どもを見守りながら動ける安心感が毎日の家事を支えてくれます。

POINT3
お散歩帰りも安心、すっきり暮らせる2way玄関

「雨の日やお散歩帰り、玄関がすぐ散らかる…」そんな悩みを解決する、2way玄関。

家族はシューズクロークを通って、靴やベビーカー、外遊びグッズを片づけてからリビングへ。
汚れを持ち込みにくく、家の中がいつでも気持ちいい。
子どもとの毎日をやさしく支える、家族想いの玄関です。
\ お気軽にご予約ください /
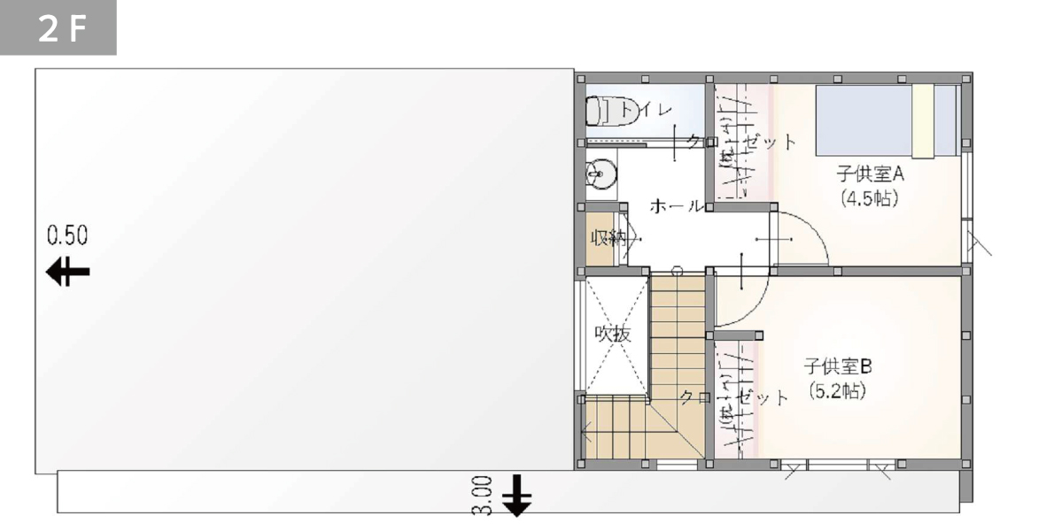
間取り図
| 1F床面積 | 67.90㎡(20.54坪) |
| 2F床面積 | 28.15㎡(8.51坪) |
| 延床面積 | 96.05㎡(29.05坪) |
ぜひ見学会でご体感ください!
家事も子育ても、がんばる毎日に“ゆとり”をくれるお家です。
暮らしの中に、小さな「助かった」が増えていく設計です。
実際に歩いて、家事や子育てのしやすさを感じてみませんか?
スタッフ一同、心よりお待ちしております!

\ お気軽にご予約ください /

-scaled.jpg)

会場MAP
会場 / 松阪市新町
場所の詳細やご不明な点がございましたら、お気軽にお問合せください。
\ お気軽にご予約ください /
中美建設が選ばれる理由
家創りの本質を決して妥協することなく、多くのお客様に喜ばれる家創りと暮らしの彩りを創造し続けています。

| 日程 | 11月1日(土)~30日(日) |
|---|---|
| 開催時間 | 10:00・11:00・12:00・13:00・14:00・15:00・16:00・17:00 |
| 開催場所 | 松阪市新町 |
| 備考 | 18時以降の見学も可能ですので、お気軽にお問い合わせください。 |
お気軽にご予約ください
ご予約フォームはこちらお電話でのお問い合わせ
0120-14-3652

